LE TAVOLE

Approvato in giunta a Ventimiglia il progetto definitivo per il recupero del Forte dell’Annunziata

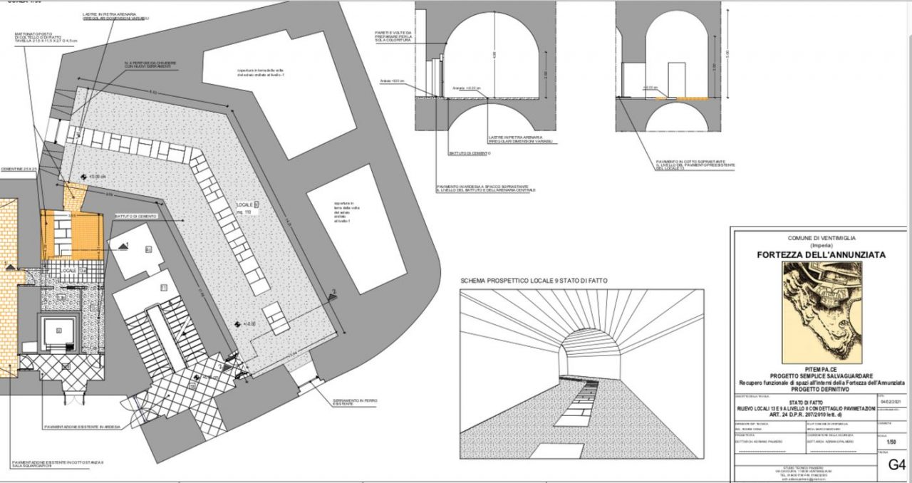
La Giunta comunale di Ventimiglia ha approvato con delibera il progetto definitivo realizzato dall'architetto Adriano Palmero

Approvato in giunta a Ventimiglia il progetto definitivo per il recupero del Forte dell’Annunziata

Approvato il definitivo per il recupero del Forte dell’Annunziata

La Giunta comunale di Ventimiglia ha approvato con delibera il progetto definitivo realizzato dall’architetto Adriano Palmero, riguardante il recupero funzionale di spazi all’interno della Fortezza dell’Annunziata, nell’ambito del Pitem Pa.C.E.. Si tratta di un’opera che prevede interventi per complessivi 150mila euro, così ripartiti

Opere edili € 112.597,69
Costi sicurezza (non soggetti a ribasso) € 7.249,00
Integrazione sicurezza protocollo Covid € 4.000,00
Spese tecniche compresa cassa prevenzione ed IVA € 18.397,60
Imprevisti ed arrotondamento € 512,99
Elaborazione consuntivo scientifico (art. 102 c. 9 D.lgs. 50/2016) € 500,00
Accantonamento incentivi (art. 113 D.lgs. 50/2016) € 2.331,95
IVA sui lavori € 11.659,77
Totale € 150.000,00